IFLA Awards
AAPME 2024
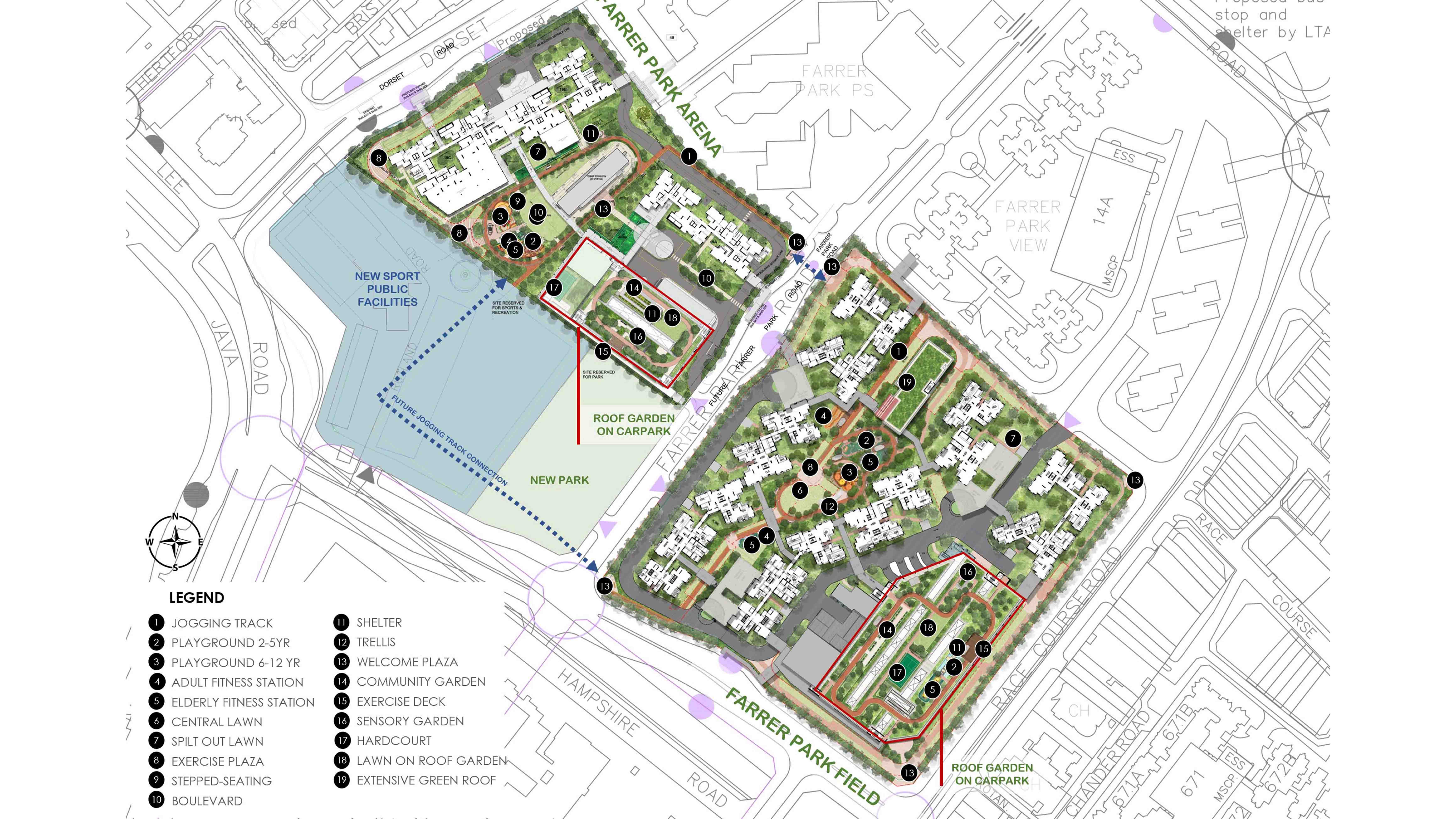
Weaving Heritage Loop - Farrer Park Field & Farrer Park Arena, Singapore
Singapore
Analysis and Planning - Honourable Mention
AAPME 2024
Transforming Unused Shaded Public Space for the Community at Villa Verde Singapore
Singapore
Heat Islands and Fire Resistance - Honourable Mention
AAPME 2024
Wake up a city with River" and "Nightlife"-The "Water Charm of Langya" Plan for Linyi City"
China
Analysis and Planning - Honourable Mention

AAPME 2024
Industrial park renewal practice in the new era-Urban Design for WUGANGYUNGU·606 in Wuhan, China
China
Analysis and Planning - Honourable Mention
AAPME 2024
From a Famous Historical Garden to People’s Paradise?Landscape Renewal and Enhancement of Bayi Park"
China
Culture and Traditions - Honourable Mention
AAPME 2024
2024 Chengdu World Horticultural Expo: Master Planning and Landscape Design
China
Social and Community Health - Honourable Mention
AAPME 2024
The Renovation of Zhoujiazui Road Tunnel Portal
China
Social and Community Health - Honourable Mention
AAPME 2024
Shijiazhuang Taiping River Area Urban Design
China
Analysis and Planning - Honourable Mention
AAPME 2024
Whimsical Wisdom Walks,Cultural Landscape of North Ring Greenway in Fuxing District, Handan
China
Culture and Traditions - Honourable Mention
AAPME 2024
THE RING OF RIVERS-REVITALIZING THE LUJIAZUI WATERFRONT, SHANGHAI, CHINA
China
Social and Community Health - Honourable Mention
AAPME 2024
THE NANTONG WATERFRONT REVITALIZATION, NANTONG CITY, JIANGSU PROVINCE, CHINA
China
Social and Community Health - Honourable Mention
AAPME 2024
NATURE TALK TO ME: Digital Landscape Science Popularization System of Ecological and Cultural in Bogong Island, Wuxi, China
China
Culture and Traditions - Honourable Mention
AAPME 2024
Cat line and Recommendation on the Historic Urban Landscape--The U2 Black Cat Squadron monuments and new urbanism in Taoyuan aerotropolis area.
Chinese Taipei
Analysis and Planning - Honourable Mention
AAPME 2024
How to improve the vitality of the new area of city? ---- Construction of multiple scene circle system based on the concept of park city
China
Analysis and Planning - Honourable Mention

AAPME 2024
FLOURISHING ALONG WITH WATER--Landscape Network Enhancement Planning for Zhuji, Zhejiang Province, from a Watershed Perspective
China
Analysis and Planning - Honourable Mention
AAPME 2024
KUNSHAN NECKLACE: Co-construction of greenway system around the Kunshan Old Town, Jiangsu Province, China
China
Analysis and Planning - Honourable Mention
AAPME 2024
Planning Age-Friendly Health Communities in Rural Guangzhou
China
Analysis and Planning - Honourable Mention
AAPME 2024
Re-weaving the Lanes and Alleys: Renovation Project of Qingguo Lane Historical and Cultural Block (Phase II),Changzhou, China
China
Culture and Traditions - Honourable Mention




















